- Accueil
- Vente
- Pyrenees atlantiques
- St palais
- Egunsenti - Investissement patrimonial - T3 récent loué en résidence sécurisée - Saint Palais
Référence : -317-
Calculette
Partager
Egunsenti - Investissement patrimonial - T3 récent loué en résidence sécurisée - Saint Palais
Description de l'offre
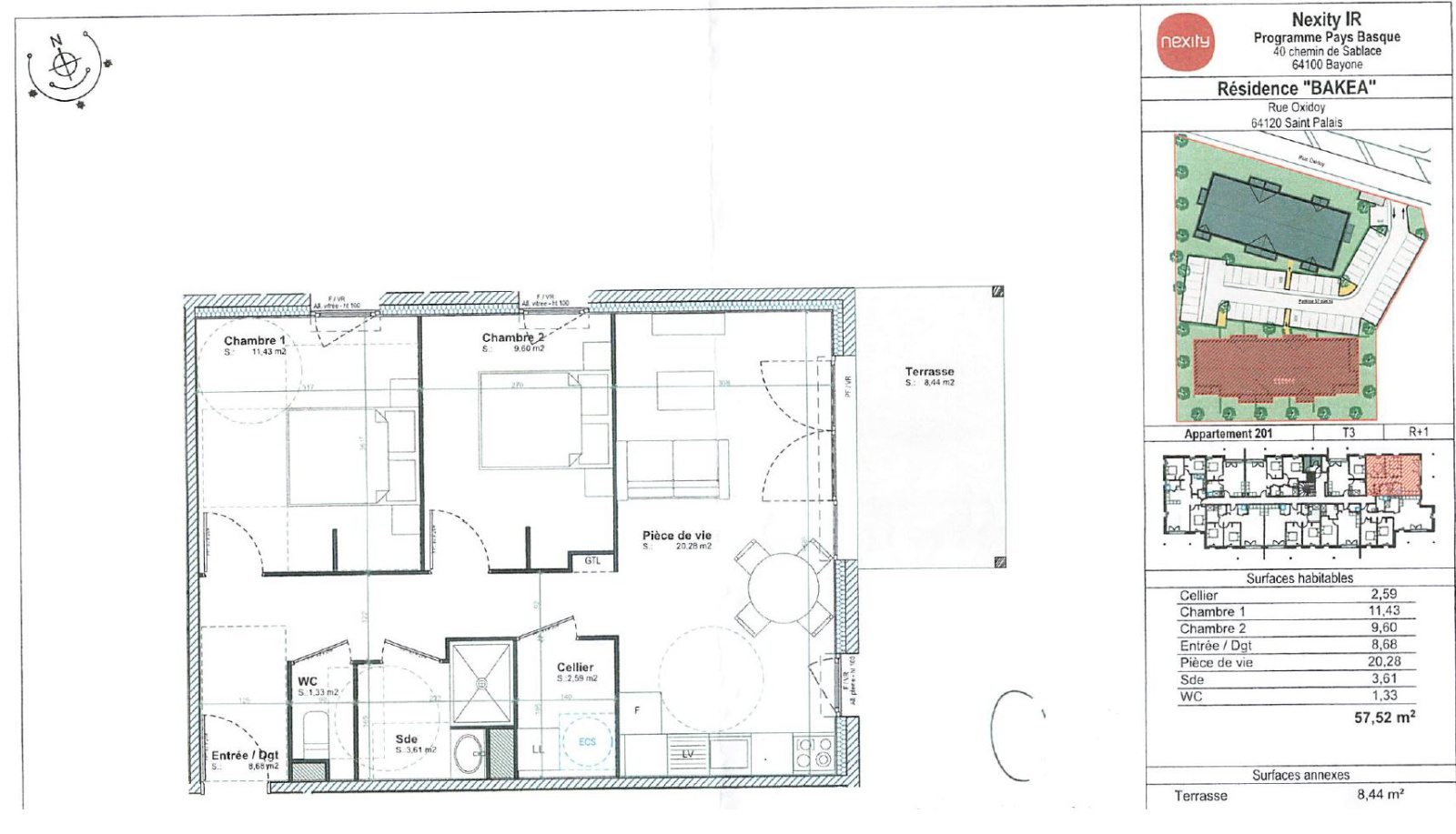
Vous recherchez un placement immobilier alliant sécurité, qualité de construction et revenus immédiats ? Ce T3 de 57,52 m² situé au premier étage de la résidence BAKEA à Saint-Palais répond à tous les critères d'un investissement patrimonial réussi. Livrée en 2021, cette résidence de standing bénéficie d'une implantation privilégiée à quelques minutes à pied des commerces, des écoles et de tous les services du centre-bourg. L'immeuble dispose d'un ascenseur, d'espaces verts soignés et d'un accès sécurisé réservé aux résidents. L'appartement se compose d'une entrée avec dégagement desservant un cellier fermé et un WC indépendant, d'une pièce de vie lumineuse ouvrant sur une terrasse couverte orientée Est, de deux chambres de belles proportions et d'une salle d'eau équipée d'une douche à l'italienne. Les prestations sont homogènes et contemporaines : sol imitation parquet, peintures claires, menuiseries PVC double vitrage avec volets. Deux emplacements de stationnement privatifs extérieurs complètent ce lot. Les performances énergétiques du bien constituent un atout majeur pour la pérennité de votre investissement. Ces excellentes performances garantissent l'attractivité locative du bien sur le long terme et l'absence de travaux de mise aux normes énergétiques à prévoir. Ce bien est vendu occupé dans le cadre d'un bail d'habitation non meublé signé le 13 juillet 2021. Le loyer actuel s'établit à 540 euros hors charges par mois. Cet appartement s'adresse principalement à l'investisseur patrimonial privilégiant la qualité intrinsèque du bien et la sécurité du placement plutôt que la recherche d'un rendement élevé immédiat. La combinaison d'une construction récente, d'un classement énergétique optimal et d'une localisation centrale en fait un actif solide pour constituer ou renforcer un patrimoine immobilier durable. Les informations sur les risques auxquels ce bien est exposé sont disponibles sur le site Géorisques : www.georisques.gouv.fr.
Descriptif du bien
- Code postal : 64120
- Surface habitable (m²) : 57,52 m²
- Surface loi Carrez (m²) : 57,52 m²
- Nombre de chambre(s) : 2
- Nombre de pièces : 3
- Etage : 1
- Nombre de niveaux : 1
- Ascenseur : OUI
- Nb de salle d'eau : 1
- Cuisine : AMERICAINE
- Type de cuisine : SEMI-EQUIPEE
- Mode de chauffage : Electrique
- Type de chauffage : Radiateur
- Format de chauffage : Individuel
- Terrasse : OUI
- Cave : OUI
- Nombre de parking : 2
- Année de construction : 2021
- Copropriété : NON
- Quote Part annuelle des charges : 529 €
- plan de sauvegarde : NON
- statut du syndic : pas de procédure en cours
- Prix de vente : 205 000 €
- Les honoraires d'agence seront intégralement à la charge du vendeur
- Charges : 20 €
- Taxe foncière annuelle : 557 €
La ville de Saint-Palais (64120)
Ce bien vous intéresse ?
Partager l'offre
Nous Contacter
Afficher le téléphone 05 59 65 81 79Les informations recueillies sur ce formulaire sont enregistrées dans un fichier informatisé par La Boite Immo agissant comme Sous-traitant du traitement pour la gestion de la clientèle/prospects de l'Agence / du Réseau qui reste Responsable du Traitement de vos Données personnelles.
La base légale du traitement repose sur l'intérêt légitime de l'Agence / du Réseau.
Elles sont conservées jusqu'à demande de suppression et sont destinées à l'Agence / au Réseau.
Conformément à la loi « informatique et libertés », vous disposez des droits d’accès, de rectification, d’effacement, d’opposition, de limitation et de portabilité de vos données. Vous pouvez retirer votre consentement à tout moment en contactant directement l’Agence / Le Réseau.
Consultez le site https://cnil.fr/fr pour plus d’informations sur vos droits.
Si vous estimez, après avoir contacté l'Agence / le Réseau, que vos droits « Informatique et Libertés » ne sont pas respectés, vous pouvez adresser une réclamation à la CNIL.
Nous vous informons de l’existence de la liste d'opposition au démarchage téléphonique « Bloctel », sur laquelle vous pouvez vous inscrire ici : https://www.bloctel.gouv.fr
Dans le cadre de la protection des Données personnelles, nous vous invitons à ne pas inscrire de Données sensibles dans le champ de saisie libre.
Ce site est protégé par reCAPTCHA, les Politiques de Confidentialité et les Conditions d'Utilisation de Google s'appliquent.
